"The WOW Factor"
- 5 Bedrooms
- 2 Bathrooms
- 2 Car spaces
- 553 sq metres
Description
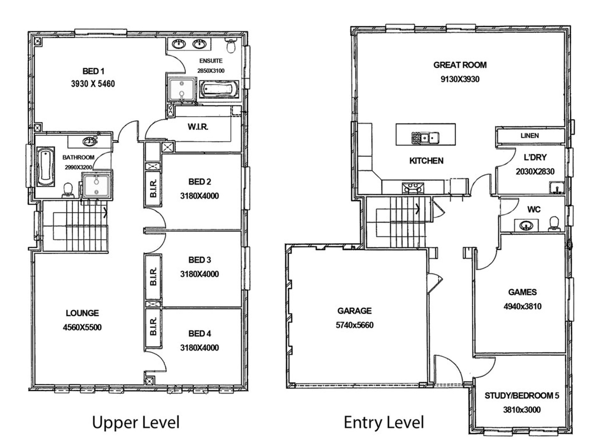
From the moment you walk into this Masterton home it will not only make a huge statement but you are bound to fall in love with every last detail of this home as it is built to the highest standards.
This elegant home has 4 bedrooms plus a study/5th bedroom all with double glazed windows and ensuite with spa bath in the main bathroom.
Two spacious living areas, fabulous kitchen with island breakfast bar and all the finest details down to the mirror splashback and soft closing draws also every mans dream man cave/ games room.
Ducted air, soft closing draws and cupboards throughout the home, Sound System in all the indoor and outdoor living areas, Alarm with back to base and perimeter alarm. Plenty of yard space for the whole family and also awesome entertainment area for the great family barbeques.
To top this all off perfect positioned in a whisper quiet street with surrounding quality homes.
Call us now dont miss out on this fantastic opportunity.

